L-Shaped Kitchen Design Guide: How to Plan a Functional L-Shaped Kitchen
L-shaped kitchens continue to be one of the most popular kitchen layouts in Australian homes, and it’s easy to see why. This layout adapts comfortably to different room sizes, works just as well in compact spaces as in larger homes, and strikes a balance that many other kitchen layouts struggle to achieve. When people explore L-shaped kitchen designs, it’s usually because they want flexibility without sacrificing practicality.
A well-planned L-shaped kitchen creates a natural corner kitchen arrangement that supports open living spaces while still delivering strong storage and an efficient workflow. One run can handle cooking and preparation, the other can support cleaning and storage, and the open side keeps the kitchen connected to the rest of the home. It’s a layout that suits how Australian homes are actually lived in, not just how they look on a plan.
At Ross’s Discount Home Centre, we’ve planned and supplied L-shaped kitchens for homes of all sizes. What we’ve learned is that this layout offers a lot of flexibility—but only if it’s planned properly. This guide breaks down how L-shaped kitchens work, where they shine, and what to think about before you lock anything in.
What Is an L-Shaped Kitchen?
An L-shaped kitchen layout uses two connected runs of cabinets, arranged at right angles to form an “L” along adjacent walls. This layout is commonly used when there’s enough wall length to spread the kitchen out, but the space still needs to feel open and easy to move through.
The corner is the defining feature of a kitchen in an L shape. How that corner is planned has a big impact on storage and usability. Corner cabinets can either become highly practical storage zones or awkward dead space, depending on how they’re designed and accessed. Getting this part right is key to making the layout work well day-to-day.
Compared to galley kitchens, which rely on two parallel runs, an L-shaped kitchen opens the room up and reduces the feeling of being enclosed. Compared to one wall kitchens, it offers more bench space and storage by using a second wall, without forcing everything into a single line.
What makes the L-shaped kitchen layout so popular is the balance it creates. It supports an efficient workflow by logically grouping kitchen zones, while still allowing flexibility in how the space connects to the rest of the home. When planned properly, it delivers both practicality and a sense of openness that suits a wide range of kitchen footprints.
Is an L-Shaped Kitchen Right for Your Space?
An L-shaped kitchen works well in many homes, but it isn’t a one-size-fits-all solution. Before settling on this layout, it’s worth considering how the space is used, how the kitchen connects to nearby rooms, and whether the layout supports both movement and workflow.
Spaces Where L-Shaped Kitchens Work Best
L-shaped layouts tend to suit kitchens with long enough walls to create two functional runs without closing in the space. This is where L-shaped kitchen designs really shine, offering flexibility without overcomplicating the layout.
They work particularly well in:
- Medium to large kitchen areas: Where two connected benchtop runs can be used comfortably
- Open-plan homes: Where the kitchen needs to flow visually into living or dining areas
- Family kitchens: Spaces that benefit from clear zones and easy movement
- Renovation layouts: Homes where existing walls can’t be removed, but the layout still needs to adapt
When the proportions are right, an L-shaped kitchen creates a natural sense of spatial flow and zoning, making it easier to cook, move, and use the space.
When an L-Shaped Kitchen Can Feel Limiting
An L-shaped kitchen can feel restrictive when the space doesn’t support the layout, or when key decisions haven’t been thought through early. In most cases, it’s not theL-shape design itself that causes problems — it’s how the space is planned and how the kitchen is expected to function.
An L-shaped kitchen may feel limiting when:
- Wall length is too short: Very small kitchens don’t always provide enough run to form two useful sides
- Corner storage is poorly planned: Awkward corner cabinets can lead to congestion and wasted space
- Too much is forced into the layout: Oversized appliances or unnecessary features can overwhelm the footprint
- Traffic paths cut through work zones: Walkways that pass through prep or cooking areas disrupt workflow and circulation
The key thing to remember is this: the layout isn’t the issue — poor planning is. When corners, clearances, and traffic flow are handled properly, an L-shaped kitchen can still feel open, practical, and easy to use.
Planning the Layout — Where L-Shaped Kitchens Succeed or Fail
This is where an L-shaped kitchen either comes together or starts to feel awkward. The layout itself offers plenty of flexibility, but how you arrange the key zones determines whether the kitchen feels easy to use or constantly gets in the way. Good planning here is what turns an L-shaped kitchen design into a genuinely functional kitchen layout.
The Ideal L-Shaped Kitchen Workflow
L-shaped kitchens naturally support efficient movement because tasks can be spread across two connected runs instead of being forced into a single line. When planned well, this creates clear work zones and keeps everyday movement logical and contained.
A common and effective approach is to position the sink on one run and the cooktop on the other, with the fridge placed close to the main prep area. This keeps washing, cooking, and food storage connected without overlapping. The layout adapts the kitchen triangle rather than forcing it, allowing each zone to work together without excessive walking or crossing paths.
Prep space is where this layout really benefits. By keeping the main prep zone between the sink and cooktop, and away from walkways, the kitchen stays organised and easier to work in. Problems usually arise when prep areas are broken up or pushed into corners, or when traffic routes pass straight through working zones.
If you want a deeper understanding of how workflow and cabinet placement affect usability, our guides on How to Design a Functional Kitchen and How to Arrange Kitchen Cabinets for Optimal Functionality explain these principles in more detail and show how to apply them to real kitchen layouts.
When the workflow is planned properly, an L-shaped kitchen feels intuitive to use. When it isn’t, even a large kitchen can feel disjointed and inefficient.
Corner Planning — The Most Important Decision in an L-Shaped Kitchen
In an L-shaped kitchen, the corner isn’t just another cabinet — it’s the point where the whole layout either works smoothly or starts to fall apart. Poor corner planning is one of the most common reasons an L-shaped kitchen feels awkward to use, even when everything else looks right on paper.
Corner cabinets can either unlock valuable storage or create hard-to-reach dead space. Blind corner cabinets are a common choice, but without the right internal solution, they can quickly become wasted space that’s difficult to access. This is where options like our Corner Base Cabinets and Magic Corner Pull Out Cabinets (available in left and right corners) make a noticeable difference, turning deep corners into usable, practical storage rather than black holes for rarely used items.
In some layouts, leaving the corner open or simplifying the cabinetry around it can actually improve ergonomics and flow, rather than forcing a complex solution into a tight space.
Depth and clearance are just as important as the storage solution itself. Corner cabinets need to be planned so doors, drawers, and pull-out systems don’t clash with appliances or walkways. When corners are designed with proper clearances in mind, the kitchen feels easier to move around in and far more efficient to use.
If you’re looking for practical L-shaped kitchen layout ideas, this is one area worth slowing down and getting right. Good corner planning improves cabinet access, boosts storage efficiency, and has a bigger impact on usability than almost any other single decision in the layout.
Storage and Cabinet Choices for L-Shaped Kitchens
One of the biggest advantages of L-shaped kitchens is how easily storage can be spread across two connected runs. When planned well, this layout allows you to balance access, capacity, and workflow, rather than relying on one area to do all the work.
Balancing Drawers, Cupboards, and Corner Storage
In an L-shaped designs, kitchen drawers work best on the primary run where most of the cooking and preparation happens. Drawer-heavy layouts keep everyday items within easy reach, reduce bending, and make the kitchen quicker to work in. Pots, pans, utensils, and pantry items are easier to access when stored in drawers rather than in deep cupboards.
Base cabinets and wall cupboards still have an important role, particularly for bulk storage or items used less often. Placing cupboards on the secondary run helps keep the main working areas clear and prevents the kitchen from feeling cluttered or crowded during daily use.
The key is balance. Once the corner storage solution is set, the rest of the cabinetry should support it, not compete with it. Overloading the layout with too many cupboards or forcing storage into every available space often makes the kitchen harder to use, not more practical.
In a well-planned L-shaped kitchen, storage feels intentional. Each cabinet has a purpose, access is easy, and the layout supports how the kitchen is actually used — not just how much it can hold.
Where Pantries Work Best
In L-shaped kitchens, pantry placement significantly affects both storage and the space’s openness. The goal is to add capacity without interrupting workflow or blocking sightlines across the kitchen.
Pantry cabinets tend to work best at the end of a run, rather than in the middle of the layout. This keeps the main benchtop areas clear and allows tall units to sit where they feel intentional rather than intrusive. End-of-run storage also helps frame the kitchen without cutting across the corner or narrowing walkways.
Visual balance matters just as much as storage volume. Placing tall pantry cabinets too close to the corner or clustering them can make an L-shaped kitchen feel heavy on one side. Spreading tall units thoughtfully, or limiting them to a single run, helps maintain a lighter, more open feel.
This is where accurate planning really pays off. Knowing exact cabinet dimensions makes it easier to position pantry units without guesswork or last-minute compromises. Our kitchen cabinets, with consistent sizing and fixed dimensions, make it easier to plan pantry placement accurately and install cleanly — especially in L-shaped layouts where spacing and proportions matter.
L-Shaped Kitchens with or Without an Island
Adding an island is one of the most common questions people have when planning L-shaped kitchens. An island can be a great addition, but only when the space supports it. The key is understanding when an island improves the layout — and when it simply gets in the way.
When an L-Shaped Kitchen with an Island Works Well
An L-shaped kitchen with an island can work extremely well when the space is sized to support it. The key is making sure the island adds function, not friction.
An island tends to work best when:
- There’s enough clearance on all sides: Walkways remain comfortable even with appliance doors open
- Workflow stays intact: The island sits close to the main prep zone without cutting across it
- Prep comes before seating: The island is used as a workspace first, with seating added only if space allows
When these conditions are met, an island can enhance L-shaped kitchen designs by adding bench space and helping define the kitchen within an open-plan layout.
When an Island Causes More Problems Than It Solves
An island can look appealing in L-shaped kitchens, but in the wrong space, it can create more issues than benefits. If the layout can’t comfortably accommodate one, an island often ends up working against the kitchen rather than improving it.
An island is more likely to cause problems when it:
- Overcrowds the layout: Walkways become tight, and movement feels restricted
- Blocks appliance access: Oven, dishwasher, or fridge doors can’t open properly
- Compromises prep zones: Bench space along the L-shaped runs is reduced or broken up
If adding an island means sacrificing clear walkways or usable bench space, it’s usually a sign that the layout will work better without one.
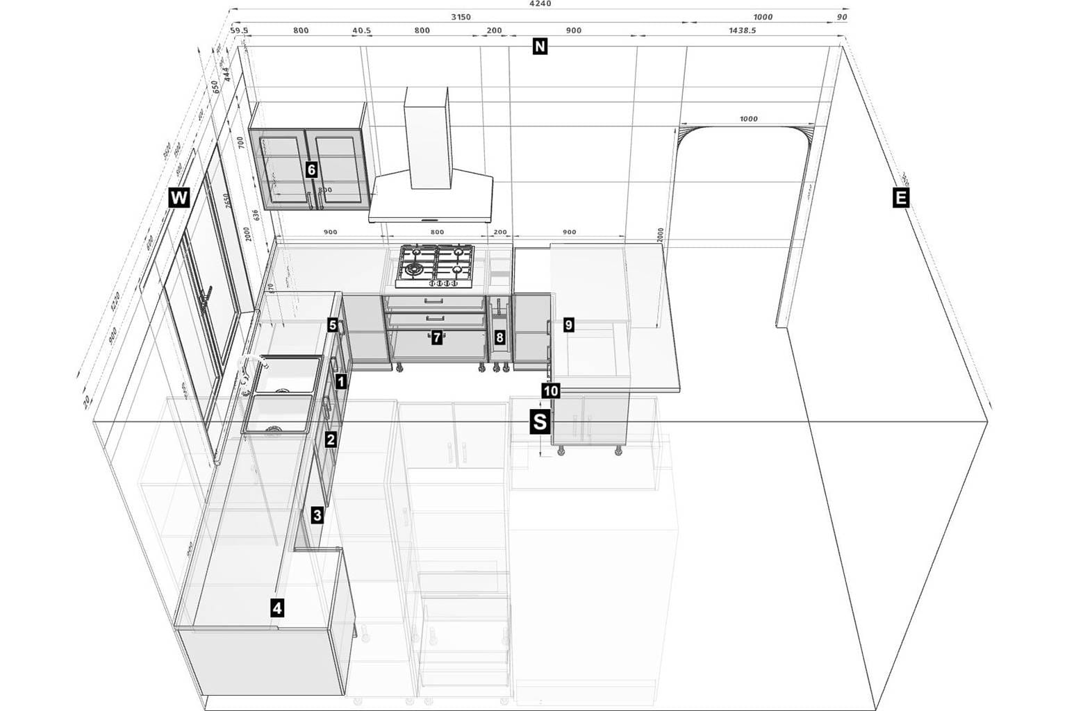
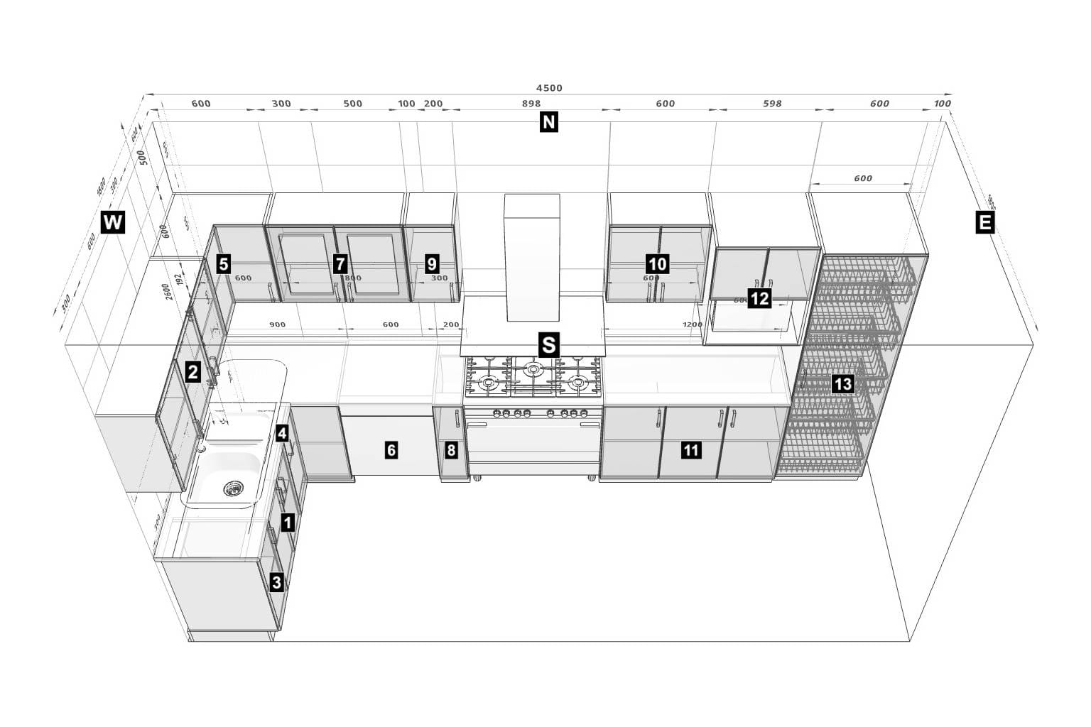
L-Shaped Kitchen Layout Ideas from Real Kitchen Designs
Need L-shaped kitchen design inspiration? The L-shaped kitchen layout ideas below are plans of real customers’ kitchens, not showroom concepts. They show how different cabinet configurations work in a variety of room shapes, with examples both with and without islands.
You’ll see how small layout changes — like pantry placement, corner design, or appliance positioning — can make a noticeable difference to how an L-shaped kitchen functions. The aim here is simple: give you practical inspiration you can adapt to your own space before locking in a final layout.
Plan Before You Buy — Why L-Shaped Kitchens Still Need Precision
L-shaped kitchens offer flexibility, but they still leave little room for guesswork. Corners, clearances, and appliance placement all need to be accurate because small mistakes tend to show up quickly once the kitchen is installed. This is especially true in an L-shaped layout, where door swings, drawer access, and benchtop depth all interact at the corner.
Problems often appear after installation, not before. An oven door clashes with a walkway, a drawer can’t open fully near a corner, or bench space ends up tighter than expected. Fixing these issues later can mean reworking cabinetry, replacing components, or living with compromises that could have been avoided with better planning.
That’s why layout planning should come before you design L-shape kitchen details or choose kitchen cabinets. Using our free 3D kitchen planner allows you to work with accurate cabinet sizes, test clearances, and visualise how the kitchen will function before anything is ordered. Designing first and ordering second reduces risk, saves time, and helps ensure the finished kitchen works as well in practice as it does on screen.
In a layout where precision matters, proper kitchen layout planning isn’t an extra step — it’s what protects the end result.
Common L-Shaped Kitchen Mistakes to Avoid
Most issues with L-shape kitchens don’t come from the layout itself. They come from planning decisions that seem minor at the time but create problems once the kitchen is installed. These are the most common mistakes we see — and they’re all avoidable with the right approach.
- Poor corner cabinet choices: Selecting the wrong corner solution can lead to wasted space, awkward access, and long-term frustration.
- Forcing an island into tight spaces: Adding an island without the required clearances often overcrowds the layout and restricts movement.
- Blocking walkways with appliances: Appliance placement needs to account for door swings and circulation, especially near corners.
- Choosing cabinets before confirming the layout: Locking in cabinetry too early can force compromises that affect spacing, workflow, and usability.
Avoiding these layout mistakes isn’t about complexity — it’s about slowing down, confirming the layout first, and making decisions that suit the space rather than fighting it.
Final Thoughts — Why L-Shaped Kitchens Remain a Popular Choice
L-shaped kitchens remain a popular choice because they strike a rare balance between flexibility and functionality. The layout adapts well to different room sizes, supports clear kitchen zones, and leaves space open for movement without sacrificing storage or bench space.
When an L-shaped kitchen is planned properly, it suits a wide range of homes — from smaller updates through to full kitchen renovations in Perth. What makes the biggest difference isn’t the finish or the latest trend, but how well the layout has been thought through. Clearances, corner planning, appliance placement, and cabinet selection all matter more than surface-level design choices.
If you’re planning an L-shaped kitchen, the best place to start is with the layout. Lock that in first, then choose kitchen cabinets that suit the space and support how you want the kitchen to work. If you’d like help with the planning, you can book a free design consultation with our kitchen specialist, Fiona, or visit our kitchen showroom in Perth for expert guidance before making any decisions.


























