U-Shaped Kitchen Design Guide: How to Plan a Functional U-Shaped Kitchen
When it comes to kitchen layout shapes, U-shaped kitchens are designed for people who want everything within reach. With benches and cabinets wrapping around three sides, this layout creates a focused cooking zone that prioritises efficiency, storage, and flow.
Well-planned U-shaped kitchens suit homes where the kitchen needs to work hard. The wraparound layout keeps prep, cooking, and storage close together, making it easier to move through tasks without wasted steps. When done right, U-shape kitchen designs are practical, organised, and built around how the space is actually used.
This guide breaks down how U-shaped kitchen designs really work, where they shine, and what to consider before locking in a layout — so you can decide whether this high-function kitchen design is right for your home renovation.
What Is a U-Shaped Kitchen?
A U-shaped kitchen layout is built around three connected runs of cabinets and benchtops that form a U shape. This arrangement wraps the kitchen around the user, creating a clearly defined cooking zone where everything is close at hand.
Because the kitchen is enclosed on three sides, a kitchen in U-shape naturally separates cooking and preparation from surrounding spaces. This makes it perfect for homes where the kitchen needs to feel organised and self-contained, rather than open and transitional. The layout typically requires enough wall length on all three sides to allow for comfortable benchtop runs and proper clearances.
U-shaped kitchens differ from L-shaped layouts by adding a third run, which increases storage and bench space but also makes spacing more critical. Compared to galley kitchens, they offer a more enclosed workspace rather than two parallel runs. When planned properly, the three-wall kitchen layout creates distinct kitchen zones and supports efficient movement within the space.
The key to making this enclosed layout work is spatial planning. Clearances, benchtop depth, and appliance placement all need to be considered early so the kitchen feels functional rather than confined.
Is a U-Shaped Kitchen Right for Your Space?
A U-shaped kitchen is highly functional, but it isn’t right for every home. Because the layout wraps around three sides, it works best when the space can support clear walkways, defined zones, and enough room to move comfortably within the kitchen.
Spaces Where U-Shaped Kitchens Work Best
This layout suits homes where storage and bench space are a priority, and where the kitchen benefits from being a clearly defined zone rather than a thoroughfare. In these situations, designs for U-shaped kitchens offer efficiency without compromising usability.
U-shaped kitchens tend to work well in:
- Medium to large kitchens: Where three full benchtop runs can be accommodated comfortably
- Family kitchens: Homes that need generous storage and practical work zones
- Renovation layouts: Spaces where existing walls already frame the kitchen
- Low-traffic areas: Kitchens that aren’t used as a main passage between rooms
When the proportions are right, a U-shaped layout delivers strong spatial efficiency and keeps everything within easy reach, making it ideal for busy households and storage-heavy kitchens.
When a U-Shaped Kitchen Can Feel Overwhelming
A U-shaped kitchen can start to feel closed in when the space isn’t suited to the layout or when key decisions haven’t been planned properly. In most cases, it’s not the U-shape kitchen design itself that causes issues — it’s how the layout has been applied to the room.
A U-shaped kitchen may feel overwhelming when:
- The room is too small: Limited clearance can make the enclosed layout feel tight rather than efficient
- Lighting and finishes are poorly chosen: Heavy cabinetry or dark materials can add visual heaviness
- Too many tall units are grouped together: Clustering pantries or wall cabinets can dominate the space
- Circulation paths cut through the kitchen: Walkways that pass-through work zones lead to congestion
The important thing to remember is this: the layout isn’t the issue — poor planning is. When clearances, lighting, and circulation are handled properly, a U-shaped kitchen can feel organised and comfortable instead of crowded.
Planning the Layout — Why U-Shaped Kitchens Demand Accuracy
U-shaped kitchens are built for efficiency, but that efficiency only shows up when the layout is planned precisely. With three working runs, small spacing or placement errors tend to multiply quickly. This is the point where a U-shaped kitchen either becomes a pleasure to use or starts to feel cramped and awkward.
The Ideal U-Shaped Kitchen Workflow
U-shaped kitchens excel because they naturally support efficient movement. With storage, prep, cooking, and cleaning spread across three sides, everything sits within easy reach without long walks or crossed paths.
A common and effective setup places the sink on one run, the cooktop on another, and the fridge on the third, allowing the kitchen triangle to work naturally rather than being forced. This keeps tasks connected while remaining separate enough to avoid congestion. Prep zones usually sit between the sink and cooktop, where bench space can remain uninterrupted and easy to work on.
Problems tend to arise when zones overlap or when prep areas are divided by walkways or appliances. A well-planned U-shape kitchen design keeps the workflow contained within the layout, rather than spread across it.
If you want a deeper breakdown of how workflow and zoning affect usability, our guides on How to Design a Functional Kitchen and How to Arrange Kitchen Cabinets for Optimal Functionality explain these principles in more detail.
Clearances and Walkways — The Make-or-Break Detail
Clearances matter more in a U-shaped kitchen than in most other layouts. Because the kitchen wraps around three sides, internal walkways need to be wide enough to allow comfortable movement, even when appliance doors and drawers are open.
Appliance door swings, drawer access, and corner clearances all need to be considered together. If one element is guessed or overlooked, it often affects the entire layout. A dishwasher that opens into a walkway or drawers that clash at a corner can quickly turn a functional layout into a frustrating one.
This is why guessing rarely works with a U-shaped layout. Accurate spacing, realistic measurements, and early planning prevent issues that are difficult and costly to fix once the kitchen is installed.
Storage and Cabinet Planning in U-Shaped Kitchens
One of the biggest advantages of U-shaped kitchens is the storage they offer without spreading the layout. With three connected runs, storage can be organised logically around how the kitchen is used, rather than forcing everything into one wall or corner.
The key is control. Good storage planning in a U-shaped kitchen design is about access and balance, not filling every available space.
In a well-planned layout:
- Kitchen drawers work best in primary prep zones, keeping everyday items close and easy to reach
- Base cabinets handle bulk storage, such as cookware and larger items that don’t need constant access
- Wall cabinets add vertical storage, but should be spaced carefully to avoid the kitchen feeling boxed in
- Pantries are best placed at the ends of runs, where they add capacity without interrupting workflow or sightlines
Because U-shaped designs naturally include more kitchen cabinets, proportions matter. Too many tall or wall cabinets clustered together can make the space feel heavy, while thoughtful spacing keeps the kitchen feeling organised and comfortable.
Accurate planning plays a big role here. Knowing exact cabinet dimensions makes it easier to position storage without clashes or compromises. This is where our kitchen cabinets help simplify planning and installation, especially in U-shaped layouts where spacing and alignment across three sides must be precise.
U-Shaped Kitchens with or Without an Island
Adding an island is a common consideration in U-shaped kitchens, but it only works when the space can support it. The decision comes down to clearances, workflow, and whether the island improves usability rather than restricting it.
When a U-Shaped Kitchen with an Island Works Well
A U-shaped kitchen layout with an island works best when there’s enough internal space to move comfortably on all sides. Clear walkways are essential so appliance doors, drawers, and cupboards can be used without blocking access.
An island should support the layout, not interrupt it. When positioned correctly, it sits near the main prep zone and provides useful bench space. As with other layouts, the island should be treated as prep space first, with seating only added if the space allows without compromising circulation.
When clearances are right, and workflow remains intact, an island can enhance a U-shaped kitchen. When space is tight, the same island can quickly become a limitation rather than an improvement.
When a U-Shaped Kitchen Works Better Without an Island
In many homes, U-shaped kitchen designs without an island offer a cleaner, more efficient solution. When internal space is limited, removing the island often improves the kitchen’s feel and function.
A U-shaped kitchen usually works better without an island when:
- Overcrowding becomes an issue: Keeping the centre open preserves comfortable movement within the layout
- Internal space is limited: Clear internal walkways make the kitchen easier to use and less confined
- Usability takes priority: Fewer obstacles mean better traffic flow and a more efficient working zone
In these situations, the strength of the U-shaped layout comes from its wraparound bench space and storage. Keeping the centre clear allows the layout to work as intended, without unnecessary compromises.
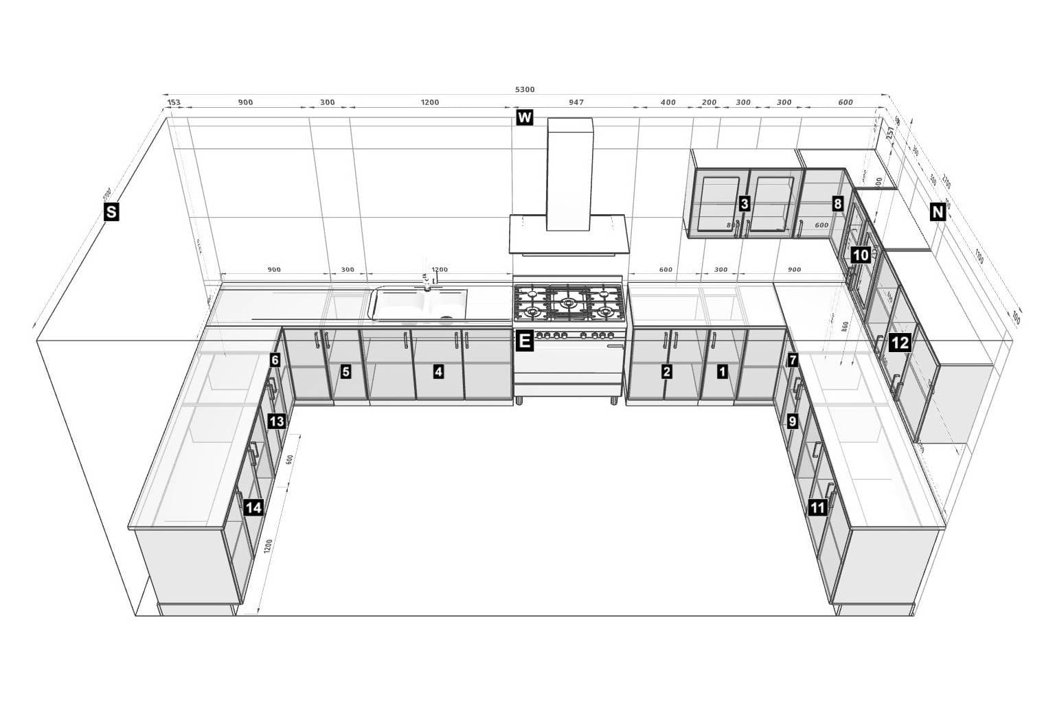
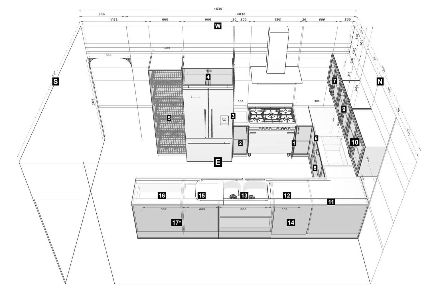
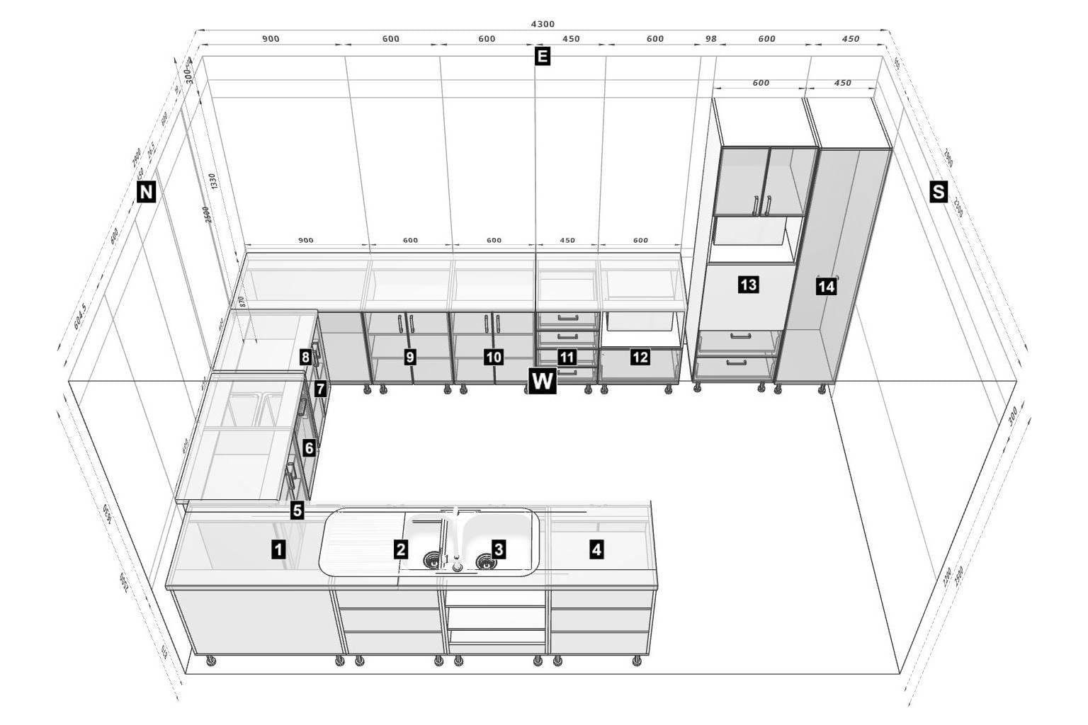
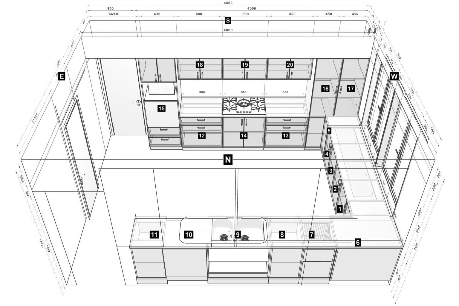
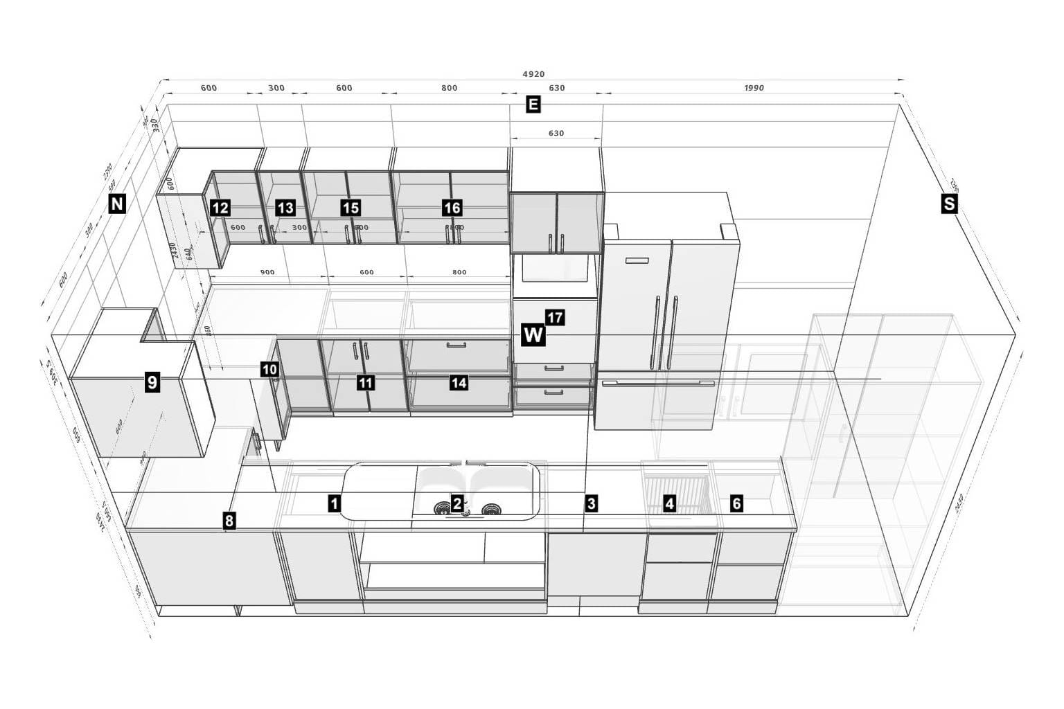
U-Shaped Kitchen Layout Ideas from Real Customer Kitchens
Looking for practical U-shaped kitchen ideas? The layouts below come from real customer kitchens created with our 3D kitchen planner. They show how different cabinet configurations work in a variety of spaces, with examples both with and without islands.
These kitchen ideas for U-shaped designs highlight how choices such as pantry placement, appliance positioning, and internal spacing affect the layout’s functionality. The aim is simple: give you realistic inspiration you can adapt to your own space before locking in a final U-shaped kitchen layout.
Plan Before You Buy — Why U-Shaped Kitchens Leave No Room for Guesswork
U-shaped kitchens are efficient because everything sits close together — but that also means small mistakes are harder to hide. With three connected runs, errors in spacing or placement tend to affect the entire layout, not just one section.
Door swings, drawer access, and benchtop depth all interact in a U-shaped kitchen. A dishwasher that opens into a walkway, drawers that clash near corners, or benches that feel tighter than expected can all be traced back to layout decisions made too early or without accurate measurements. Fixing these issues after installation is often expensive and disruptive.
That’s why planning needs to come first when you design U-shape kitchen layouts. Using our free 3D kitchen planner allows you to work with real cabinet sizes, test clearances, and see how the kitchen will function before anything is ordered. Designing first and ordering second reduces risk and helps avoid compromises that are difficult to correct later.
In a three-sided layout like this, proper kitchen layout planning isn’t optional — it’s what protects the finished result.
Final Thoughts — Why U-Shaped Kitchens Are Built for Performance
U-shaped kitchens are designed for function first. With wraparound bench space and storage on three sides, the layout supports efficient movement and keeps everything within reach without relying on add-ons or trends to make it work.
When planned properly, a U-shaped kitchen suits a wide range of homes and performs especially well in Perth kitchen renovations, where space, storage, and practicality often matter more than aesthetics alone. The difference between a kitchen that feels efficient and one that feels overwhelming comes down to accuracy — clearances, cabinet placement, and how well the layout has been thought through from the start.
If you’re considering a U-shaped kitchen, finalise the layout first, then select kitchen cabinets that suit the space and support how you’ll use the kitchen. If you’d like help with the planning, you can book a free design consultation with our kitchen specialist, Fiona, or visit our Perth kitchen showroom for expert guidance before making any decisions.




























