One Wall Kitchen Design Guide: How to Plan a Functional Single Wall Kitchen
The one wall kitchen has become one of the most common kitchen layout shapes in Australia — and it’s not just because of smaller floor plans. Apartments, townhouses, and modern open-plan homes are increasingly designed around a single wall kitchen to keep spaces feeling open, uncluttered, and connected to the rest of the living area.
At first glance, a one wall kitchen looks simple. Fewer cabinets, fewer corners, and a clean, linear layout. But that simplicity is exactly why good planning matters more here than with any other kitchen design. When everything runs along one wall, there’s no room to hide poor spacing, awkward appliance placement, or wasted storage.
A well-designed single wall kitchen can feel spacious, efficient, and surprisingly practical. A poorly planned one can feel cramped and frustrating to use every day. At Ross’s Discount Home Centre, we work with customers designing one wall kitchen layouts daily, which is why this guide focuses on practical design decisions that work in real homes — not just showroom layouts.
What Is a One Wall Kitchen?
A one wall kitchen is a layout where all cabinets, appliances, and benchtop space are arranged along a single wall. You’ll also hear it referred to as a single wall kitchen or single line kitchen design. At first glance, it’s one of the simplest kitchen layouts — but in practice, it requires careful planning to work well.
As mentioned, this layout is most commonly used in apartments, townhouses, studios, and open-plan homes, where space is limited or where the kitchen needs to visually blend into the living area. By keeping everything on one wall, the room feels more open and less crowded than other kitchen layouts, especially L-shaped or U-shaped layouts.
That said, a one wall kitchen isn’t right for every home. Because storage, bench space, and appliance placement are all compressed into a single run, poor planning can quickly lead to a layout that feels cramped or impractical. When designed properly, even a small single wall kitchen layout can be efficient, streamlined, and surprisingly functional.
Is a One Wall Kitchen Right for Your Space?

A one wall kitchen can be a smart, space-efficient solution — but it’s not a universal fit. Before locking in this layout, it’s important to consider how your home is used and whether a single run of cabinetry can realistically meet your needs.
Spaces Where One Wall Kitchens Work Best
One wall kitchens perform best in spaces where openness and flow matter more than sheer storage volume. They’re particularly well suited to:
- Apartments and units, where floor space is limited and open-plan living is common
- Open-plan living areas, where the kitchen needs to visually blend into the room
- Studios and compact homes, where a compact one wall kitchen keeps the space feeling light and uncluttered
- Secondary kitchens, granny flats, or studio-style extensions, where simplicity and efficiency are the priority
In these settings, a single wall kitchen layout can feel intentional rather than restrictive — especially when paired with smart storage choices and a clean, streamlined finish.
When a Single Wall Kitchen May Not Be Ideal
A one wall kitchen isn’t wrong for narrow spaces — in fact, it’s often the most practical option available. Where it can fall short is not the room shape itself, but the demands placed on the kitchen.
A single wall layout may be limiting if:
- The household cooks frequently and needs multiple work zones
- Several people use the kitchen at the same time
- There’s a need for extensive bench space or storage
- The kitchen must function independently, without nearby dining or living space for overflow
In these cases, the layout can still work, but it needs careful planning—or design compromises such as adding an island, extending the run, or maximising vertical storage.
For many homes, especially apartments, studios, and narrow renovations, a one wall kitchen isn’t a compromise at all. It’s simply the best use of the available space, provided the layout is properly designed.
Planning the Layout — Order Matters More Than Size
In a one wall kitchen, you don’t have the luxury of multiple runs or zones — the order of elements along the wall does most of the heavy lifting. Get the sequence right, and even a compact kitchen can feel intuitive and efficient. Get it wrong, and the space quickly becomes awkward, cluttered, or frustrating to use.
Unlike larger kitchens that rely on a traditional work triangle, a single wall kitchen layout works best when planned as a logical workflow, moving from food storage through to cooking and serving.
The Ideal One Wall Kitchen Workflow
The most functional one wall kitchen design generally follows this sequence from one end of the wall to the other:
- Fridge – start where food is stored
- Prep space – a clear bench area immediately after the fridge
- Sink – for washing produce and quick clean-ups
- Cooktop – positioned after prep and washing
- Landing space – a final bench area for plating, serving, or setting items down
This order minimises backtracking and keeps tasks flowing naturally in one direction. In a compact one wall kitchen, this matters far more than squeezing in extra cabinets or appliances. Even a small stretch of uninterrupted bench between key zones can dramatically improve the kitchen’s usability.
If you’re unsure how to apply these principles to your own space, our guides on How to Design a Functional Kitchen and How to Arrange Kitchen Cabinets for Optimal Functionality break these concepts down further and show how good planning translates into real-world layouts.
For one wall kitchens especially, careful sequencing — not sheer size — is what separates a kitchen that simply fits from one that actually works.
How Long Should a One Wall Kitchen Be?
One of the most common mistakes with a one-wall kitchen design is underestimating how much wall length is actually needed. Because everything sits along a single run, every appliance and cabinet competes for space, and small miscalculations quickly lead to a cramped layout.
As a general guide, a minimum wall length of around 2.4–2.7 metres is needed to fit a basic single wall kitchen with a fridge, sink, cooktop, and limited prep space. This can work, but it often feels tight. A more comfortable and functional layout usually starts at 3.0 metres or more, which allows for better bench space, sensible cabinet sizing, and breathing room between work zones.
Where people run into trouble is in guessing. Choosing cabinets or appliances without accurate measurements often leads to compromised prep space, awkward gaps, or appliances placed too close together. In a single wall kitchen, there’s no second chance to fix poor spacing elsewhere in the room.
This is why proper kitchen planning matters so much for one wall layouts. Taking the time to map out real cabinet sizes, appliance widths, and clearances upfront helps avoid costly changes later and ensures the kitchen works as well in daily use as it does on paper.
Storage Solutions for One Wall Kitchens

One wall kitchens don’t have the luxury of corners or return runs, which means every cabinet choice matters. The key to making a single wall kitchen work long-term is smart storage planning — not just squeezing in more cupboards, but using the wall properly from floor to ceiling.
Go Vertical — Why Full-Height Cabinets Matter
In a one wall kitchen, you lose corner cabinets and secondary storage zones, so vertical storage becomes essential. Full-height cabinets help reclaim that lost capacity without increasing the kitchen’s footprint.
Tall pantry cabinets are far more efficient than short overheads, especially in compact kitchens. They provide uninterrupted storage for food, appliances, and bulk items while keeping the layout clean and streamlined. Running overhead cabinets to the ceiling also reduces dust traps and creates a more cohesive, built-in look, which is especially important in open-plan spaces.
The result is a kitchen that feels organised and intentional, not cluttered — even when storage needs are high.
Choosing the Right Mix of Kitchen Cabinets
Because everything sits on one wall, the balance between base cabinets, drawers, and tall units is critical.
- Kitchen drawers are often more practical than cupboards for everyday items, making it easier to access cookware, utensils, and pantry goods without digging to the back of a cabinet.
- Pull-out pantry cabinets are another smart inclusion, especially in narrow kitchens where swing doors can become awkward. They maximise storage while keeping access simple and efficient.
- Wall cabinets should be planned carefully — enough to provide storage, but not so many that they overwhelm the space. In many one wall kitchens, fewer but taller cabinets work better than lots of shallow ones.
This is also where our pre-assembled kitchen cabinets can make the process easier. With fixed dimensions and consistent sizing, it’s simpler to visualise the layout, plan storage accurately, and install the kitchen cleanly — particularly for DIY projects or tight renovation timelines.
Appliance Choices That Make or Break a One Wall Kitchen
In a one wall kitchen, appliance selection can make the difference between a layout that feels effortless and one that feels cramped from day one. Because everything sits along a single run, appliance size and configuration matter far more than brand or features.
Oversized appliances are one of the most common mistakes in a single wall kitchen layout. Large freestanding fridges, wide cooktops, or bulky ovens can quickly eat into valuable bench space and disrupt workflow. In most cases, choosing slightly smaller but better-positioned appliances results in a more usable kitchen overall.
Built-in appliances are often the better option for one wall kitchens. Integrated ovens, cooktops, and dishwashers sit flush with cabinetry, creating a cleaner line and improving circulation along the wall. Slimline dishwashers and compact cooktops are particularly effective in tight layouts, allowing you to retain prep space without sacrificing everyday functionality.
Fridge selection is especially important. Benchtop-depth or integrated fridges help maintain a flat cabinet line, preventing the fridge from visually or physically dominating the kitchen. Where space allows, positioning the fridge at one end of the run also improves workflow and reduces congestion during busy times.
When planning kitchen appliances for a one wall kitchen, the goal isn’t to fit everything — it’s to fit the right things, in the right proportions, so the layout works comfortably.
Bench Space, Not Seating, Should Be the Priority

One of the most common mistakes in a one wall kitchen design is trying to force seating into a layout that simply can’t afford to lose bench space. In a single wall kitchen, your benchtop does a lot of heavy lifting — it’s your prep zone, landing space, and sometimes even your informal dining area.
Prioritising preparation space over stools almost always leads to a more functional kitchen. Continuous bench space between the sink, cooktop, and fridge makes everyday tasks easier and reduces clutter, especially in compact layouts where there’s no second run of cabinets to fall back on.
Extending the benchtop slightly past appliances, where possible, is a smart move. Even a modest overhang at the end of the run can create extra prep or serving space without compromising the layout. This is often far more useful than squeezing in a couple of rarely used stools.
A one wall kitchen with an island can work — but only when the room genuinely has the depth to support it. The island should add bench space first and seating second. Clear walkways, appliance doors, and comfortable circulation need to be factored in before committing to fixed seating.
In tighter homes, a movable island or freestanding bench is often the better solution. It provides flexibility, extra workspace when needed, and can be repositioned or removed altogether as the space evolves.
Design Choices That Keep One Wall Kitchens Feeling Open
In a one wall kitchen, design choices matter just as much as layout. Because everything sits along a single line, visual clutter builds quickly if finishes and details aren’t considered carefully.
- Light colours and reflective finishes help bounce light around the room, making compact kitchens feel larger and brighter rather than boxed in.
- Gloss cabinetry reflects both natural and artificial light, which is why high gloss white kitchens remain such a popular choice in single wall layouts.
- Simple, clean lines keep the run of cabinets looking streamlined instead of busy. Flat-panel doors and minimal detailing work particularly well here.
- Handle styles matter — slimline bar handles or integrated options reduce visual interruption across the cabinet faces.
- Consistent finishes across cabinets, splashbacks, and benchtops help the kitchen read as one cohesive element rather than a collection of parts.
- Avoiding unnecessary open shelving prevents the wall from feeling cluttered and keeps the focus on clean, uninterrupted surfaces.
This is also where our bright white 2PAC kitchen cabinets shine. They deliver a crisp, modern look while helping one wall kitchens feel more open, especially in apartments and open-plan living spaces.
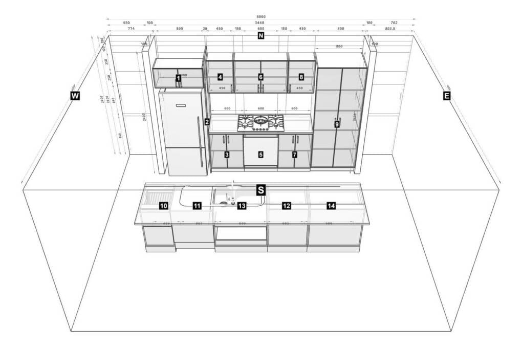
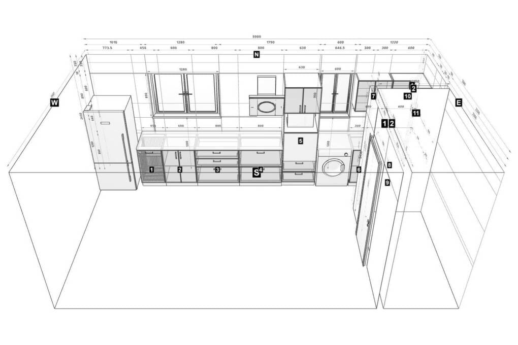
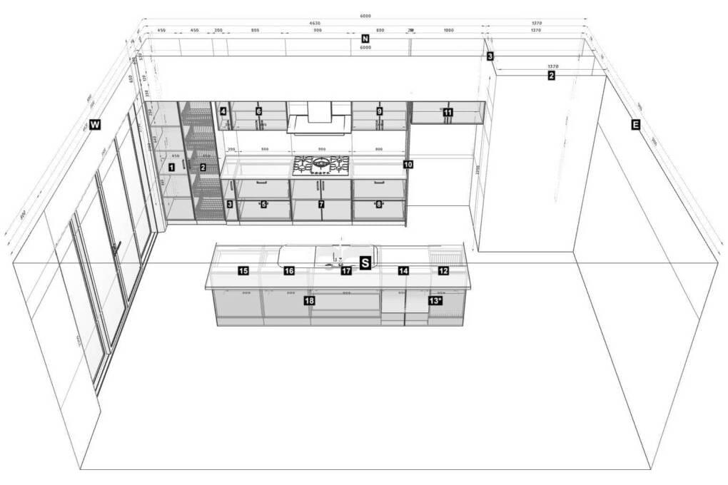
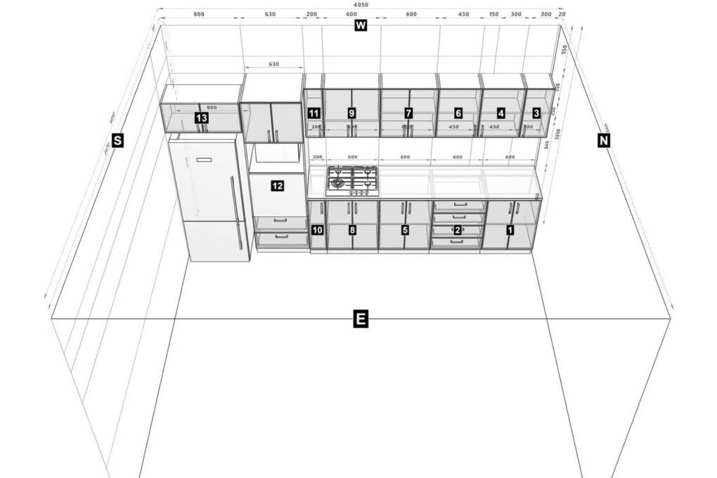
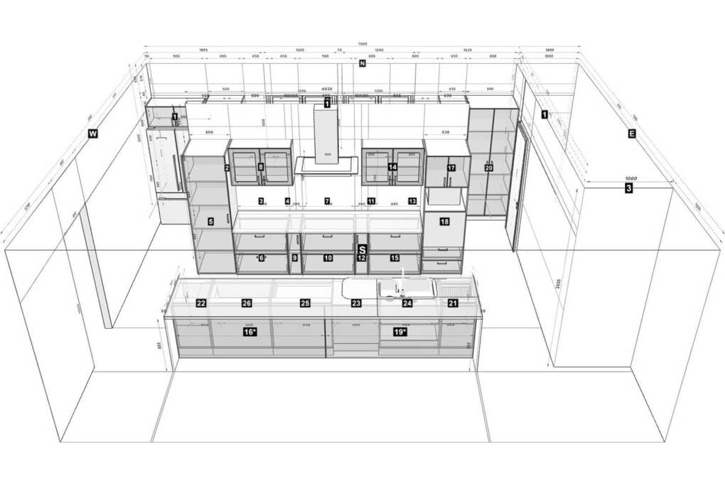
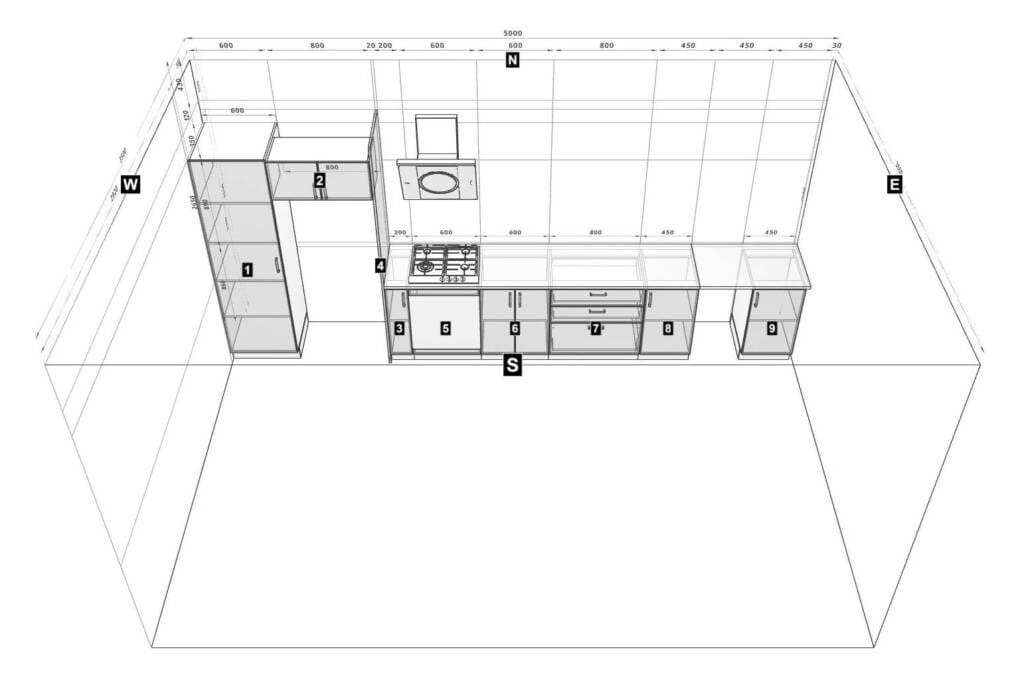
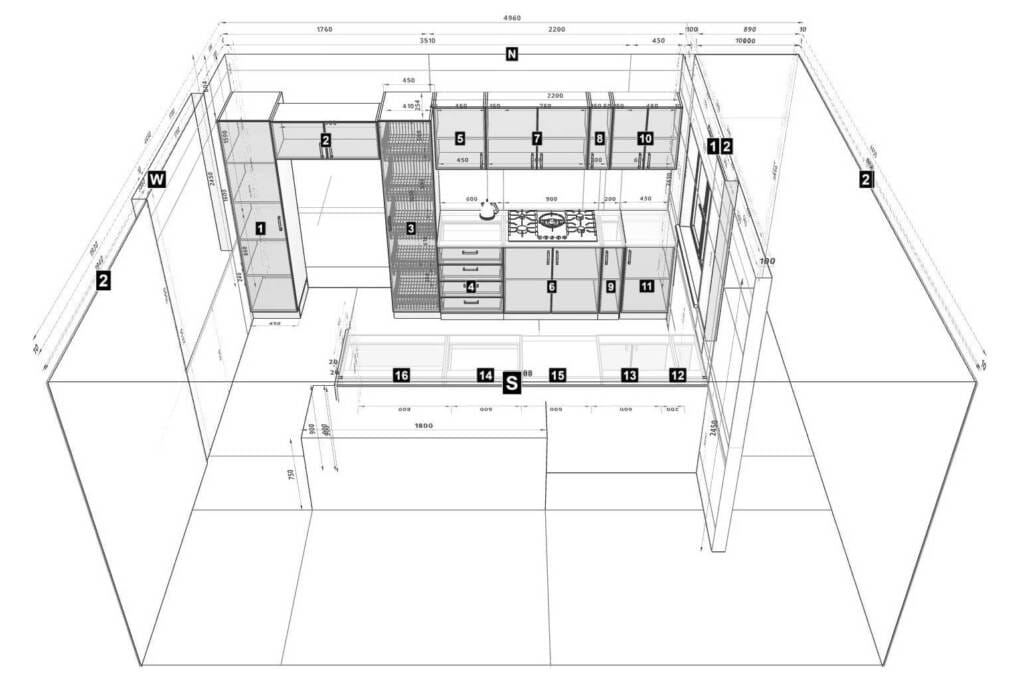
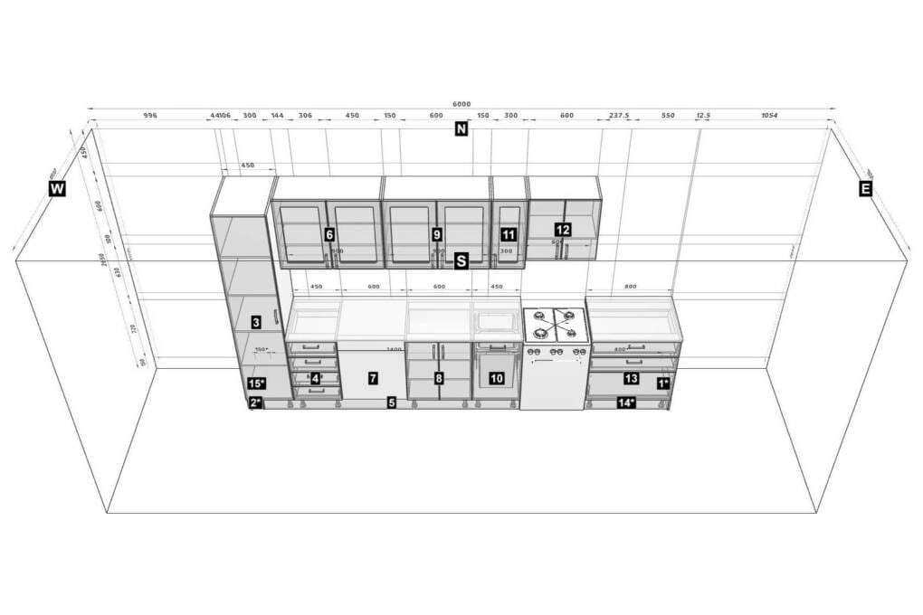
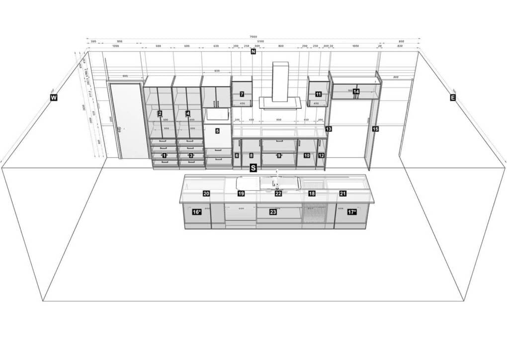
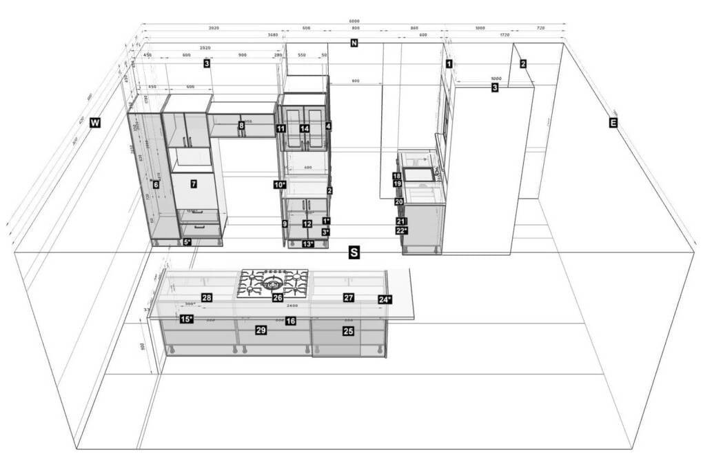
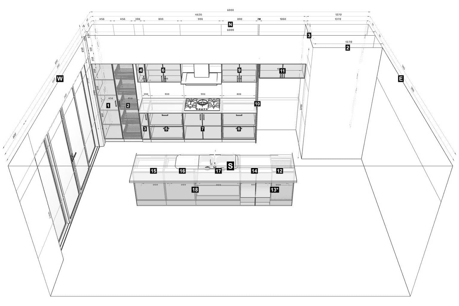
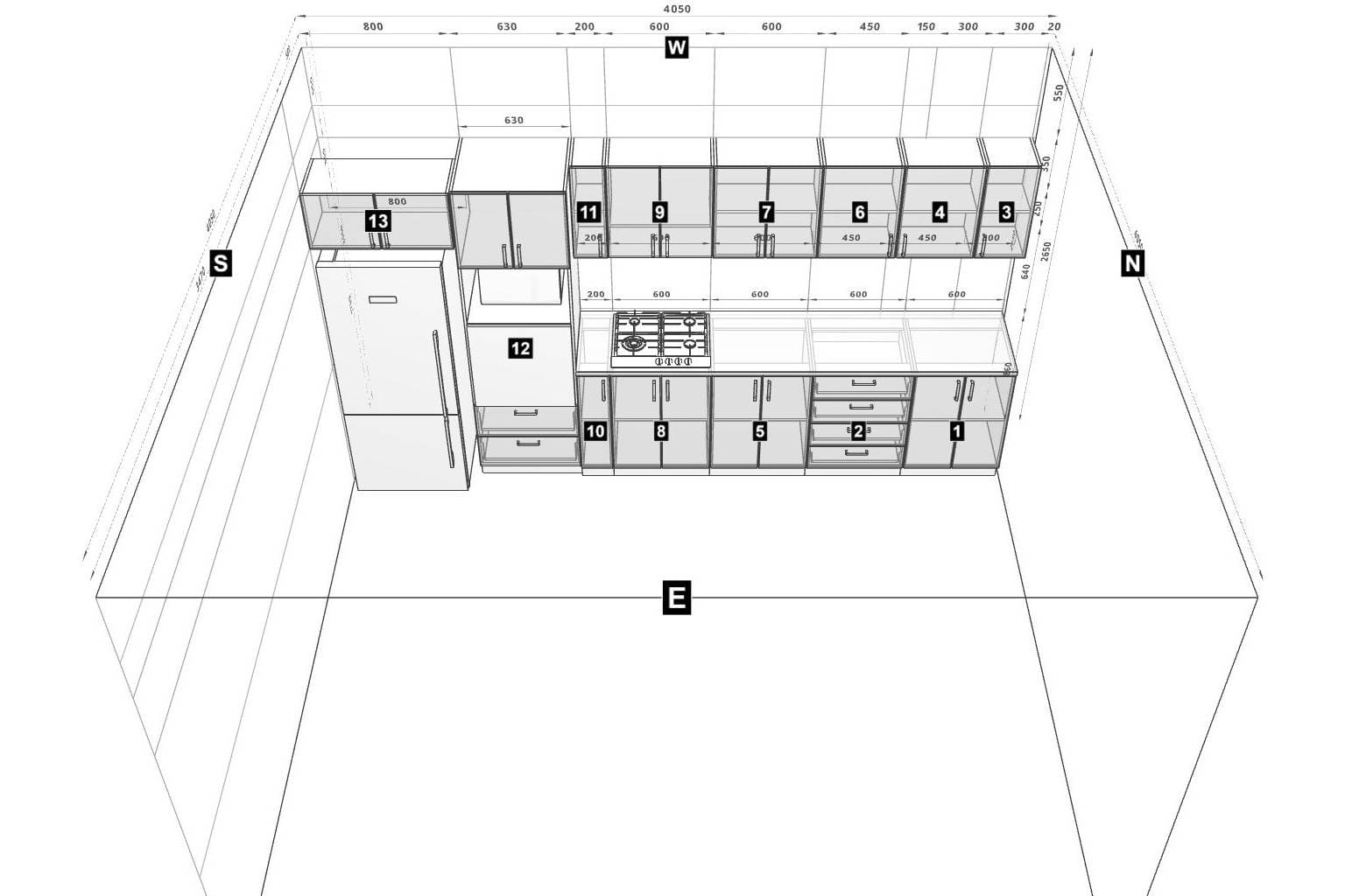
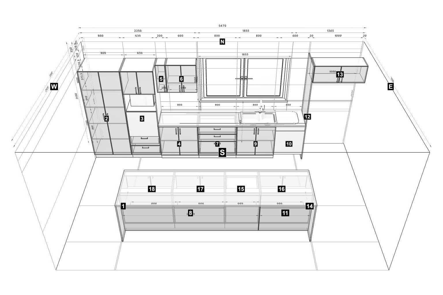
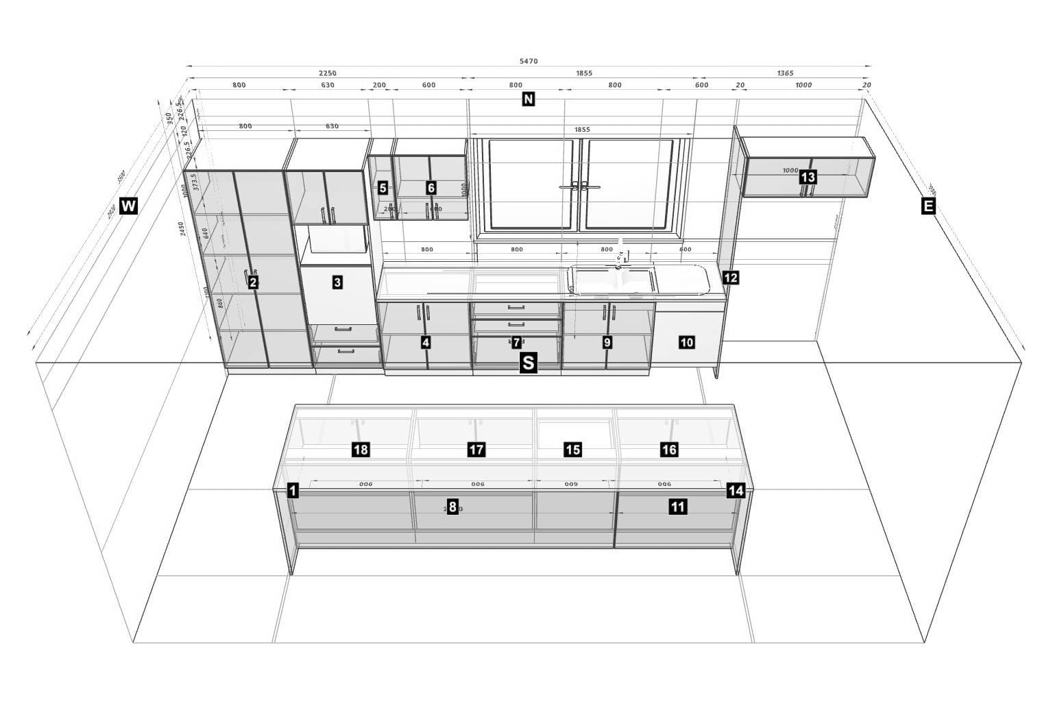
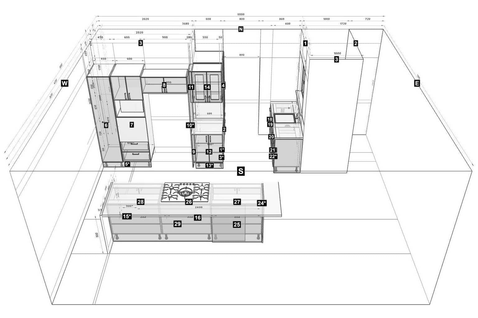
One Wall Kitchen Layout Ideas from Real Kitchen Designs
Looking for one wall kitchen design inspiration? The one wall kitchen layout ideas below come from real customer builds, not staged displays. They show how different cabinet runs, appliance placements, and storage choices work in a variety of room sizes.
These examples highlight how small planning changes — such as extending a benchtop, adjusting cabinet heights, or repositioning appliances — can improve usability in a single wall kitchen. The goal is to give you realistic ideas you can apply to your own layout before committing to a design.
Plan Before You Buy — Why Visualising the Layout Matters
One wall kitchens leave very little room for error. With no second run of cabinets to absorb mistakes, every cabinet size, appliance clearance, and gap needs to be considered before anything is ordered.
Guessing measurements or planning on paper alone often leads to issues — benches that feel too short, appliances that crowd the prep space, or cabinets that don’t align as expected once installed. These problems are far easier to prevent than fix.
Visualising the layout early allows you to see how the kitchen will actually function. You can test different cabinet combinations, adjust spacing, and confirm that appliance doors, drawers, and walkways all work together comfortably.
Using our free 3D kitchen planner makes this process far more accurate. Designing your kitchen with real cabinet sizes helps ensure the layout works before you commit, giving you confidence that what you’re buying will fit both the space and your kitchen’s use.
For a layout that relies so heavily on precision, planning upfront isn’t optional — it’s what turns a simple one wall kitchen into a genuinely functional one.
One Wall Kitchen Mistakes to Avoid
One wall kitchens can work brilliantly, but small planning errors have a much bigger impact here than in larger layouts. These are the most common mistakes we see—and the easiest to avoid with proper planning.
- Placing the sink hard up against the cooktop: This leaves no usable prep space and makes the kitchen feel cramped. Even a small buffer bench between the two improves safety and usability.
- No landing space near appliances: Fridges, ovens, and dishwashers all need nearby bench space. Without it, everyday tasks like unloading groceries or draining pasta become frustrating.
- Too many short overhead cabinets: Short, broken runs of overheads can make the wall feel cluttered and heavy. Fewer, full-height cabinets usually look cleaner and provide better storage.
- Choosing cabinets before planning the layout: Selecting cabinets first often forces the layout to work around the products, rather than the other way around. This leads to awkward gaps, lost bench space, and compromised workflow.
Avoiding these kitchen design mistakes is less about spending more and more about thinking through how the space will actually be used day to day — which is especially important in a one wall kitchen.
Final Thoughts — A One Wall Kitchen Can Work Brilliantly with the Right Planning
A one wall kitchen isn’t a compromise when it’s designed properly. In many homes, it’s the most logical and space-efficient solution — especially in open-plan living areas, apartments, and compact builds.
What matters most isn’t the size of the kitchen, but the planning behind it. A clear workflow, sensible appliance placement, adequate bench space, and the right cabinet mix can turn a single wall kitchen into a highly functional, enjoyable space to cook in.
Taking the time to plan the layout first — before choosing cabinets — makes all the difference. Once the design works on paper (or in 3D), selecting kitchen cabinets that suit that layout becomes straightforward and stress-free.
If you’re considering a one wall kitchen, start by locking in the layout before choosing cabinets. If you’d like a second set of eyes or help getting the layout right, you can call 1300 133 186 to book a free kitchen design session with our in-house kitchen designer, Fiona. She can help you plan a one wall kitchen that works with your space, your appliances, and your day-to-day needs — before you commit to anything.









































