Island Kitchen Design Guide: How to Plan a Kitchen with an Island That Actually Works
Kitchen islands are one of the most requested features in modern kitchens. From island kitchen designs that anchor open-plan living to statement kitchen island designs with seating, it’s easy to see the appeal. An island promises extra bench space, added storage, and a more social kitchen — when it’s done right.
The problem is that islands don’t suit every space or every layout. Across different kitchen layout shapes, the success of an island depends on planning, not popularity. Get the layout right, and an island adds real value. Get it wrong, and it can restrict movement and disrupt how the kitchen works. This guide breaks down when kitchen islands work, when they don’t, and how to plan one properly before committing to the design.
What Is an Island Kitchen Layout?
An island kitchen layout includes a freestanding bench that sits away from the main run of cabinets. Unlike wall-based cabinetry, the island is accessible from multiple sides and is designed to serve as an additional work zone rather than as part of the perimeter.
An island should always support the main kitchen layout, not compete with it. Whether the kitchen is one-wall, L-shaped, or U-shaped, the island’s role is to complement existing prep zones and workflow, not interrupt them. This is why simply “adding an island later” often causes problems — without proper clearances and planning, an island can quickly disrupt movement and usability rather than improve them.
Is an Island Right for Your Kitchen Space?
An island can be a great addition, but only when the space can support it. Before committing to one, it’s important to consider how the island will affect movement, workflow, and the overall feel of the kitchen.
When an Island Improves the Kitchen
Islands tend to work best in kitchen layouts with island configurations where space and circulation have been planned properly. In the right setting, an island adds function rather than clutter.
An island is more likely to improve the kitchen when:
- There’s enough space for clear walkways: Movement remains comfortable even when appliances are in use
- The kitchen is open-plan: The island helps define the kitchen without closing it in
- Extra prep space or storage is needed: The island supports daily tasks without crowding existing zones
- Informal seating is a priority: Seating works best when it doesn’t compromise circulation or bench space
When these conditions are met, an island becomes a practical extension of the kitchen rather than an obstacle.
When an Island Causes More Problems Than It Solves
An island can quickly become a liability when the space isn’t suited to it. In many cases, the issue isn’t the island kitchen layout itself, but how the island has been planned within the available space.
An island is more likely to cause problems when:
- Internal clearances are tight: Walkways become cramped, and movement feels restricted
- Appliance doors clash: Ovens, dishwashers, or fridges can’t open without blocking access
- Primary prep zones are blocked: The island interrupts workflow instead of supporting it
- Seating is forced into the design: Stools are added where there isn’t enough room
The key point to remember is this: the island isn’t the issue — poor planning is. When spacing, circulation, and purpose aren’t considered, an island can work against the kitchen rather than improve it.
Island vs Peninsula — Which One Actually Suits Your Kitchen?
Kitchen with island Kitchen with peninsula
Many kitchens that are planned with an island in mind are actually better suited to a peninsula. The two serve similar purposes — extra bench space, storage, and seating — but they behave very differently within a layout.
Understanding the difference early can save you from forcing an island into a space where it doesn’t really belong.
What’s the Difference?
An island is a freestanding bench, with circulation space required on all sides. This gives it flexibility, but it also demands generous clearances to work properly.
A peninsula is connected to the main cabinetry on one side. That single connection reduces clearance requirements, helps define the kitchen edge, and often makes the layout easier to manage in tighter spaces.
That connection point is what changes everything from a planning perspective.
When an Island Is the Better Choice
An island works best when the space genuinely allows for it.
It’s usually the right option when:
- The kitchen has enough width to maintain clear walkways on all sides
- The island supports the main workflow rather than cutting through it
- There’s room for seating without interfering with appliance access
- The layout benefits from a central prep or gathering zone
In these kitchens, an island feels natural — not forced.
When a Peninsula Makes More Sense
This is where many layouts are better served by a peninsula, even if an island was the original idea.
A peninsula often works better when:
- The kitchen wants seating but doesn’t have island clearances
- An L-shaped layout can be extended naturally with a connected bench
- A U-shaped kitchen would feel crowded with a freestanding island
- Defining the kitchen edge is more important than access on all sides
A peninsula isn’t a compromise. In many homes, it’s simply the smarter layout decision.
Island vs Peninsula — A Practical Reality Check
Both options can provide seating and storage, but they affect the space differently.
- Islands prioritise openness and flexibility, but demand space
- Peninsulas prioritise efficiency and flow, especially in tighter layouts
- Peninsulas often allow seating with fewer clearance issues
- Islands suit larger, open-plan kitchens where circulation isn’t restricted
This is exactly why testing both options during the planning stage matters. On paper, they can look similar — in real kitchens, they behave very differently.
Types of Island Kitchen Layouts (And When Each Works Best)
Kitchen islands don’t work in isolation — they rely entirely on the layout around them. The same island can improve one kitchen and ruin another, depending on the available space and how the main kitchen zones are arranged. This section breaks down where islands work best across different kitchen layouts and where they tend to cause problems.
One-Wall Kitchen with Island
In a one-wall kitchen, an island often plays a supporting role. Because storage and appliances are limited to a single run, the island helps compensate by adding bench space, drawers, or additional storage.
The key is maintaining a clear prep flow between the wall and the island. The island should be positioned close enough to function as part of the working zone without narrowing walkways or blocking appliance access. Clearances matter here — if the space between the wall and island is too tight, the layout can feel constrained very quickly.
When planned properly, a one-wall kitchen with island can feel more functional and balanced than a single run on its own. See our One Wall Kitchen Design Guide for a deeper breakdown.
L-Shaped Kitchen with Island
An island works particularly well with an L-shaped layout when it feels like a natural extension of the “L”, rather than an obstacle placed in the middle of the room. In these layouts, the island often enhances prep space and helps define the kitchen zone in open-plan homes.
Maintaining clear work zones is critical. The island should sit outside the main cooking and cleaning paths, allowing the original L-shaped workflow to remain intact. Crowding is the most common issue — if the island reduces walkways or blocks access to cabinets and appliances, it quickly becomes a problem.
When spacing is right, a L-shaped kitchen with island can offer flexibility without compromising usability. See our L-Shaped Kitchen Design Guide for more details.
U-Shaped Kitchen with Island
U-shaped kitchens can work with an island, but only when internal clearances allow it. Because the layout already wraps around three sides, the island must add value without boxing the kitchen in.
In these cases, the island should be treated as prep space first, not an obstruction. It needs enough room around it to allow drawers, doors, and appliances to operate freely. If the island narrows the internal working area too much, the kitchen can start to feel closed off rather than efficient.
A U-shaped kitchen with island works best in larger rooms where circulation paths remain generous, and the island supports the existing workflow. See our U-Shaped Kitchen Design Guide for layout-specific advice.
Why Galley Kitchens Rarely Suit Islands
Galley kitchens are built around two parallel runs with a defined circulation path between them. Adding an island to this layout usually disrupts the very thing that makes a galley kitchen work.
Because space is already constrained, an island tends to block walkways, interfere with appliance access, and break up prep zones. In most cases, alternatives such as extended bench space or improved storage within the existing runs deliver better results than forcing an island into the layout.
This is why kitchen layouts with island generally exclude true galley kitchens. The layout simply isn’t designed to accommodate a freestanding central element without compromising function. See our Gallery Kitchen Design Guide to learn more about this layout.
Kitchen Island Seating — What Actually Works
Kitchen island seating is popular, but it’s also one of the easiest things to get wrong. The biggest mistake is treating seating as the island’s main purpose, rather than a secondary feature that only works when the layout allows it.
Seating vs prep priorities
A kitchen island with seating should always function as prep space first. If seating reduces usable bench area or interferes with workflow, the island becomes less practical. In many homes, a smaller seating zone paired with a generous prep surface works better than trying to seat too many people.
Stool spacing and overhang requirements
Comfort matters. Each stool needs enough width to sit comfortably, and the benchtop needs sufficient overhang, so knees aren’t forced into cabinetry. Without proper island seating clearance and overhang depth, the seating looks fine, but isn’t used.
Breakfast bar vs full island seating
In tighter layouts, a kitchen with breakfast bar seating often makes more sense than a full island. A short overhang on one side can provide casual seating without the clearance demands of stools on multiple sides. This approach suits family kitchens where informal dining is wanted, but space is still at a premium.
In tighter layouts, a peninsula with breakfast bar seating often delivers the same casual dining benefit with fewer clearance issues than a full island.
Storage, Power, and Practical Details People Forget
This is where experience shows. Many island kitchens look good on a plan, but small practical details are often overlooked — and those details tend to affect how useful the island actually is.
Drawers vs cupboards in islands
For most designs, kitchen drawers work better than cupboards in an island. They’re easier to access while standing and make better use of the available storage. Base cupboards still have a place, but they’re better suited to items used less frequently or for larger pieces that don’t need quick access.
Power points and appliance use
Islands are often used for small appliances, charging devices, or casual food prep, yet power points are often forgotten. Power points need to be planned early and positioned so they’re usable without being visually intrusive. Retrofitting power after installation is rarely simple, especially in stone or engineered benchtops.
Sink or cooktop in the island — when it works
Including a sink or cooktop can work well in an island, but only in the right layout. A sink suits islands used for prep, provided plumbing access is straightforward. Cooktops require more consideration, including clearances, ventilation, and safety. In many kitchens, keeping major appliances on the main run and using the island as a prep and storage zone yields a cleaner, more flexible layout.
These functional details don’t add drama to a design, but they make the difference between an island that’s used every day and one that just takes up space.
If you’re still weighing up cabinet options, our Kitchen Cabinet Buying Guide walks through cabinet types, sizes, and features to consider before you order — especially important when an island is part of the layout.
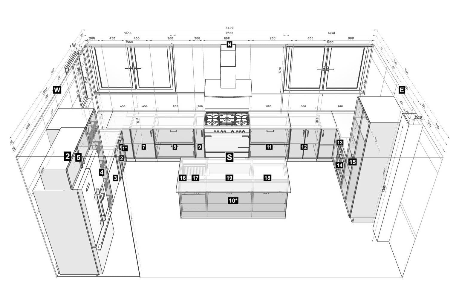
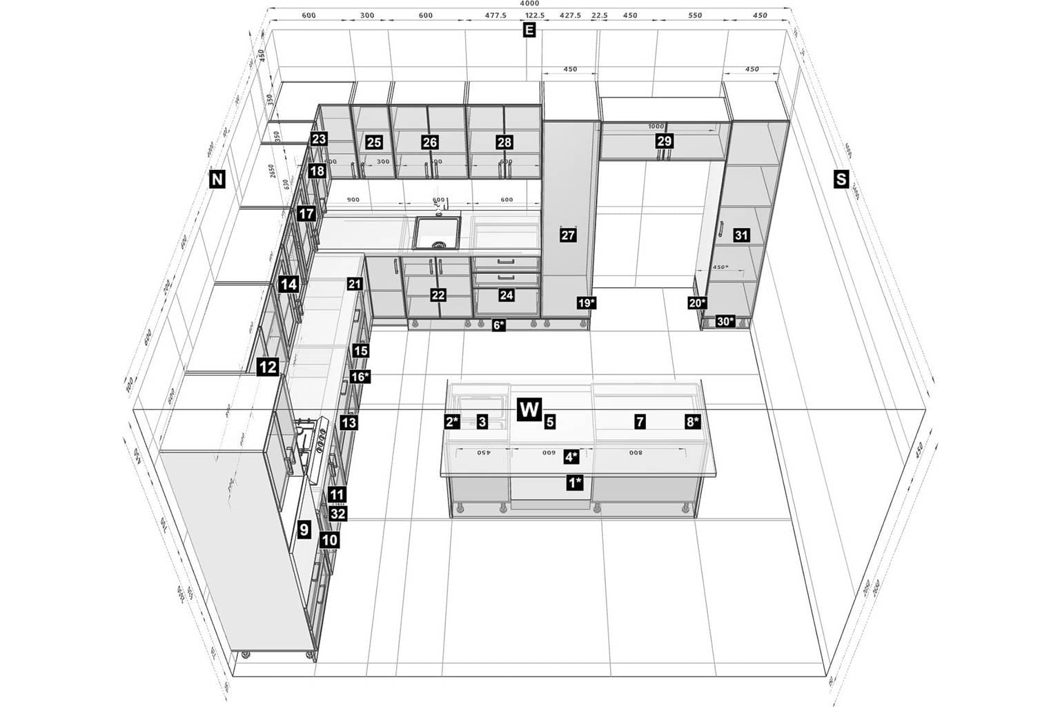
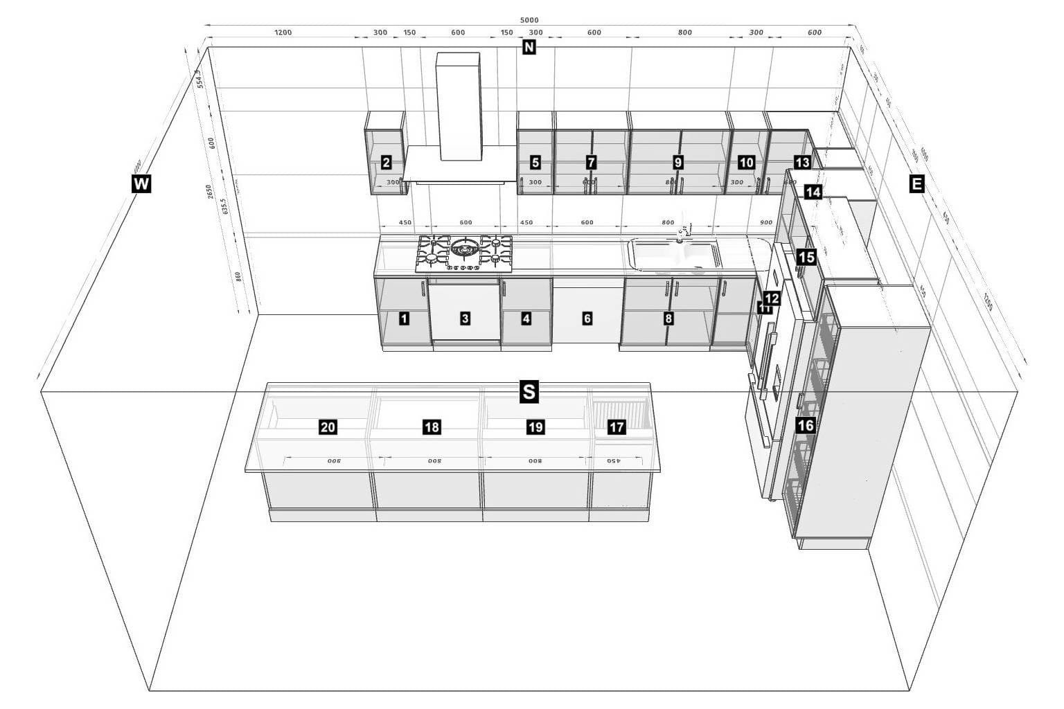
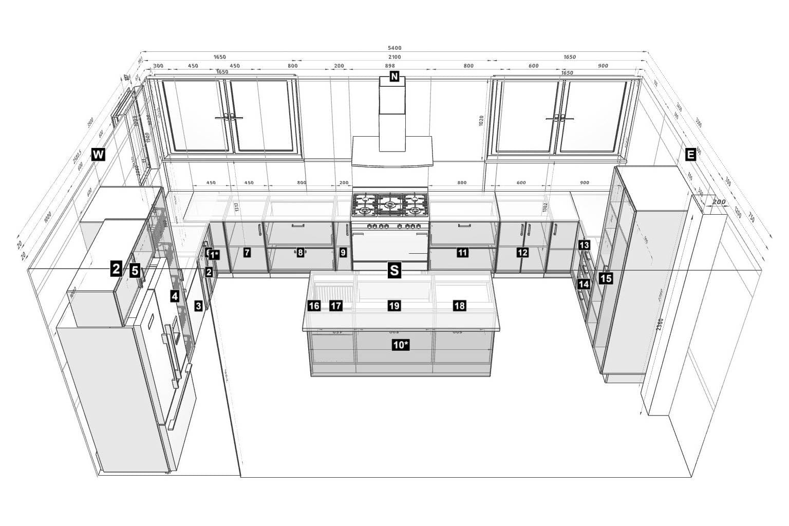
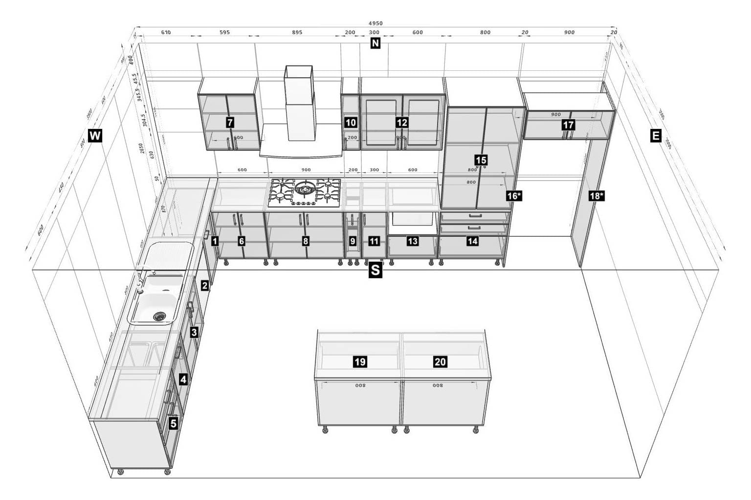
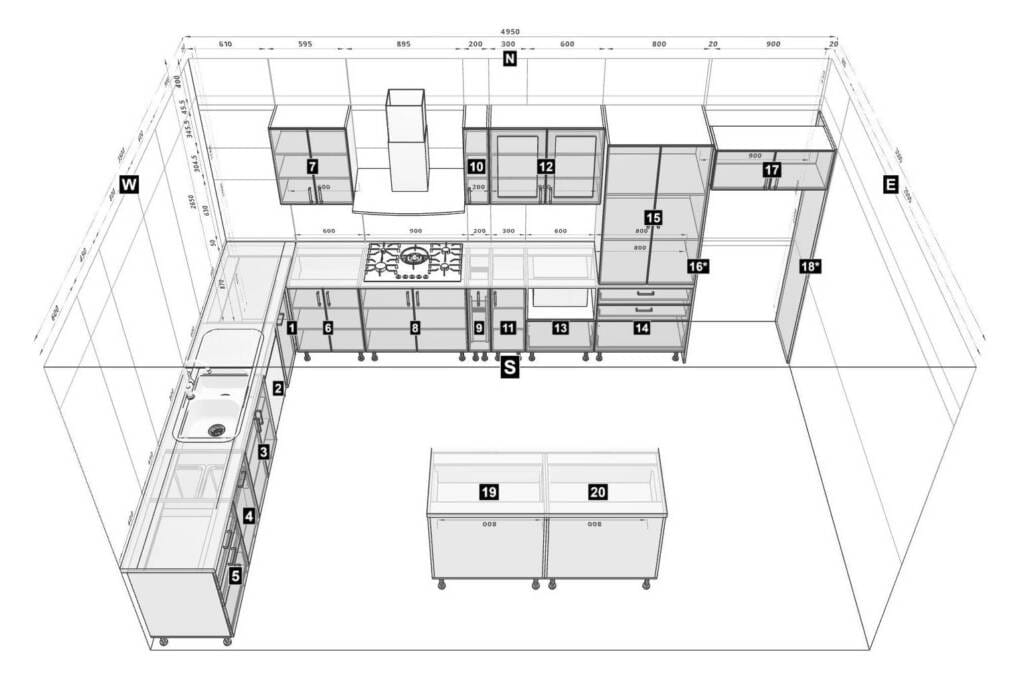
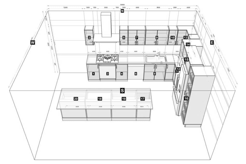
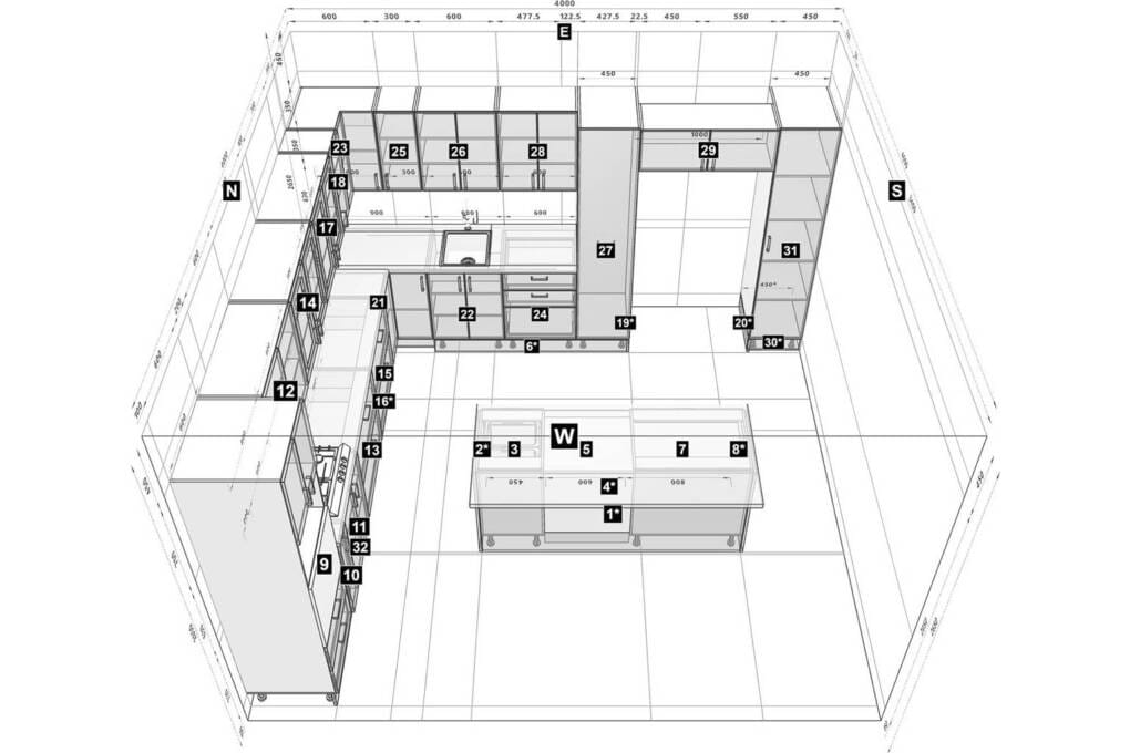
Island Kitchen Layout Ideas from Real Customer Kitchens
If you’re looking for practical kitchen island ideas, the layouts below come from real customers’ kitchens—not showroom concepts. Each one was planned using our 3D kitchen planner, so the cabinet sizes, clearances, and island positions reflect real spaces and constraints.
These island kitchen designs show a range of approaches, from compact islands used mainly for prep and storage, through to larger islands with seating where space allows. You’ll also see how island size, position, and orientation can change the way a kitchen functions, even within the same overall layout.
The goal here is simple: give you realistic inspiration you can adapt to your own kitchen before finalising the layout.
Plan Before You Buy — Why Islands Amplify Layout Mistakes
Islands add another layer to a kitchen layout, so mistakes tend to compound rather than remain isolated. In an island kitchen layout, clearances, appliance access, and circulation all interact — if one element is off, it usually affects the rest of the kitchen.
Common problems show up around spacing. Walkways feel tighter than expected, appliance doors clash with stools or drawers, or the island blocks access to key work zones. These issues are difficult to fix after installation and often involve rework that could have been avoided with better planning upfront.
This is where understanding layout fundamentals really matters. Our guides on How to Design a Functional Kitchen and How to Arrange Kitchen Cabinets for Optimal Functionality explain how workflow, clearances, and cabinet placement work together—principles that become even more important when an island is added.
Using our free 3D kitchen planner allows you to apply those principles properly. You can design with accurate cabinet sizes, test clearances, and see how the island works within the full kitchen layout before anything is ordered. Designing first and ordering second helps reduce risk and avoid costly changes later.
When an island is involved, careful kitchen layout planning isn’t optional — it’s what keeps the kitchen functional once everything is in place.
Common Island Kitchen Mistakes to Avoid
Most problems with kitchen island designs come down to planning decisions made too early. Islands look simple, but they interact with almost every part of the kitchen, which means small mistakes can have a big impact.
Common island kitchen mistakes include:
- Oversized islands: Large islands can overwhelm the space and restrict movement around the kitchen
- Poor walkway spacing: Inadequate clearance makes the kitchen feel cramped and awkward to use
- Seating forced into tight layouts: Adding stools where there isn’t enough room leads to congestion and unused seating
- Choosing island size before confirming the layout: Locking in island dimensions too early often forces compromises elsewhere
Avoiding these mistakes isn’t about adding complexity — it’s about finalising the layout first, then designing the island to suit the space rather than the other way around.
Final Thoughts — A Kitchen Island Should Support the Layout, Not Fight It
Kitchen islands aren’t essential, but when they’re planned properly, they can add real value. The strongest island kitchens are built around the layout first, with the island designed to suit the space rather than drive it.
Island success always comes back to space and workflow. Clear walkways, logical prep zones, and well-planned clearances matter far more than island size or seating numbers. When those fundamentals are right, an island feels like a natural part of the kitchen instead of an obstacle.
If you’re planning a kitchen renovation, start by finalising the layout and confirming whether an island genuinely suits the space. From there, the design becomes much easier to refine. If you’d like support with planning, you can book a free design consultation with our kitchen specialist, Fiona, or visit our Perth kitchen showroom for expert guidance as part of your kitchen renovation journey.






















